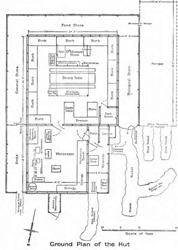
In 2003, I was part of an incredible adventure to Douglas Mawson’s Hut in Commonwealth Bay, Antarctica.
Tony Mowbray, well known Australian sailor and now my very good friend planned an expedition to sail to Commonwealth bay to Mawson’s Hut in 2003/4 in his very small 43 foot fibreglass yacht. I was fortunate enough to be selected as one of the five man team to go.
It was an incredible journey to the coldest and windiest place on earth. My fellow team members and I suffered agonising long and freezing days steering the boat with waves constantly washing over you and knocking us to the ground.
I wrote a book about the trip. Learn more about it here.














